69 Avenue Général de Gaulle, Immeuble KOBALT, 22190 Plérin Tél. : 02 96 944 108

Bureau 135 m2 / LAMBALLE (22)

À Louer

Réf. 5637.22

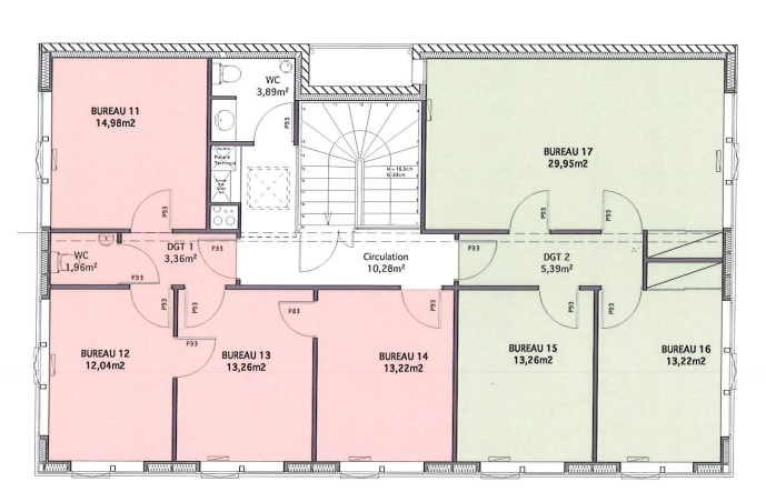
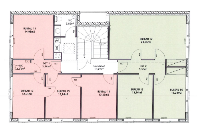
En bordure de RN12, Bleu mercure Transaction vous propose à la location un grand plateau de bureaux d'environ 135m² au sein d'un immeuble en copropriété comprenant : 
- 5 bureaux d'une superficie d'entre 12 et 14m², 
- 1 grand bureau/open-space d'une superficie de 30m² environ,

- 1 bureau de 15m² environ
- Une kitchenette,
- Deux WC

Votre contact privilégié

Fleur Rouault Chargée d'affaires

06 40 79 55 75

Envoyer un message

Classe énergie : en-cours
Classe GES : en-cours

Votre contact privilégié

Fleur Rouault Chargée d'affaires

06 40 79 55 75

Envoyer un message